площадью 193,43 м2, по цене 98262 по адресу Хасанский район - поселок городского типа Славянка, 50 лет Октября улица,8

Цена 98 262 р.
Адрес Хасанский район, поселок городского типа Славянка, 50 лет Октября улица,8
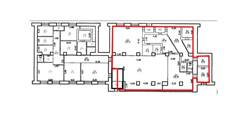
Площадь помещения 193,43 м2
Код лота: РАД-430313. Реализуется на торгах. Аренда нежилых помещений площадью 193,43 кв. м, входящих в состав нежилых помещений в здании (жилой дом, лит. А) , расположенных по адресу: Приморский край, пгт. Славянка, ул. 50 лет Октября, д. 8, площадью 359,3 кв. м, с кадастровым номером 25: 20: 000000: 3557, этаж: первый https: //catalog. lot-online. ru/index. php?dispatch=products. view&product_id=1379320
Объявление № 23275623
Дата подачи:
4 октября 2025 г. 13:40
Дата обновления:
19 октября 2025 г. 9:53
Просмотров 14 Хотите продать быстрее?

Продавец
Макаренко Кристина
Показать номер телефона
Пожаловаться
Комментарии:
Добавить